自升式同步升降液压系统,液压系统,PA集团液压科技(上海)有限公司
返回
返回
自升式同步升降液压系统
型号:SOV-JAD
【 最大侧载 】:1.5% @ 2m
【 每基础单元起重能力  】:50/100T
【 顶升行程  】:156mm
【 适用场合 】:大型钢结构、大型设备的同步顶升。
立即咨询
自升式同步升降液压系统
技术特点
自动机械自锁。
自对齐钢制顶升模块可以节省时间,提高了抗偏载能力,不再需要木制支垛材料。
由于简化了操作工序,操作循环次数比爬升式顶升系统少50%,因此能更高效地完成作业。
顶部支座设有可调式旋转鞍座,可以在顶升期间采用螺纹进行微调。
调节行程为50mm。
494mm的低本体高度,最大顶升高度可达2067mm。
应用图片
大型钢构同步顶升就位
大型钢构同步顶升就位
大型设备组装同步顶升就位
大型设备组装同步顶升就位
轻型自升式液压系统
轻型自升式液压系统
轻型自升式液压系统
轻型自升式液压系统
产品参数
规格型号 最大侧载   (m) 每基础单元 的起重能力 (T) 顶升 行程 (mm) 旋转鞍座可调行程 (mm) 最大允许 单台油流量 (l/min) 前进   (cm³) 缩回   (cm³) 端块 重量 (kg) 底座重量   (kg) 垫块 重量 (kg)
SOV-JAD-108 1.5% @ 2m 50 156 50 0.90 1225 624 40 360 16
SOV-JAD-208A 1.5% @ 2m 100 156 50 1.12 2071 965 100 820 23.5
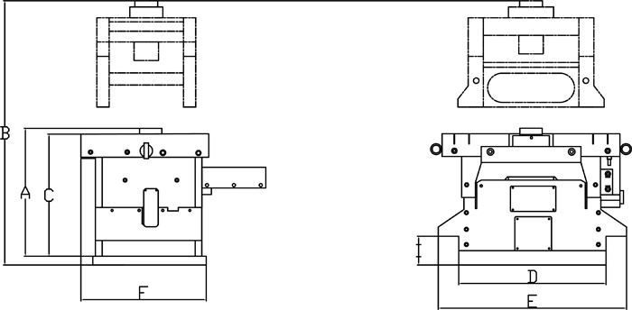
规格型号 包括端块 的最小高度 (mm) 最大 高度 (mm) A   (mm)  B   (mm) C   (mm) D   (mm) E   (mm) F   (mm) G   (mm) H   (mm) I   (mm) J   (mm) K   (mm) L   (mm) M   (mm) N   (mm) P min. (mm) P max. (mm)
SOV-JAD-108 494 2067 494 2067 476 356 505 443 556 428 91 75 726 351 300 310 175 225

*如因产品更新迭代,表中参数有所变动,恕不另行通知。

为您推荐更多产品
返回顶部
Copyright © 2021 PA集团液压科技(上海)有限公司 沪ICP备58110966号-1
PA集团
网站地图